
眼科验光组合台 综合检眼台 CS-600
商品价格:电议库存情况:现货、预订配送方式:苏州自提或第三方快递订购方式:签约购买咨询热线:18900616086- 产品简介
- 产品参数

眼科验光组合台 综合检眼台 CS-600
药(械)准字:不需要注册证
技术参数:
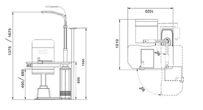
组合台尺寸 | 1020×1230×1580mm |
台面尺寸 | 1010×480×120mm |
摆臂上下升降尺寸 | 200mm |
椅子上下升降尺寸 | 200mm |
电源 | 220V 50Hz |
重量 | 240kg |
平面图示:

我司关于联系方式
如需咨询或索取产品的价格、彩页、参数、配置、授权等资料;
请致电:18900616086
关于付款
1 公司与买方签订相关合同,款到发货。
备注由于医疗器械属于特殊行业,大部分产品不能直接在线订购,具体操作请与销售人员联系。
2 在预付部分订金的情况下,可以货到付款(由于货到付款物流要收取相关费用,不推荐使用)
关于发货
正常情况下,在当天中午12点前订购的货物当天发出,12点以后订购的货物隔天发出(如有特殊情况双方协商决定)。由于仓库周末休息,周末不发货。遇法定节假日延迟发货。
关于到货时间
正常情况下市区货物在发货后3-5天到货,偏远地区7-10天,发货后工作人员告之货单号或传真提货单客户,方便双方查询提货(如遇特殊情况,双方协商解决)。

